14 Residential Architecture Apartment Ideas

An apartment is not just a unit in a building. It is a home. A well-designed apartment balances privacy and community, efficiency and delight, light and storage. It gives each resident a view, a connection to the street, and a sense of identity. The best apartment designs are not just efficient — they are generous, flexible, and humane.

These 14 residential architecture apartment ideas span unit layouts, building organisations, and amenity strategies. Each idea includes defining characteristics, spatial principles, and resident considerations.

1. The Corner Unit

The corner unit has windows on two sides. The corner location provides cross-ventilation, natural light from two directions, and views down two streets. The corner unit is the most desirable apartment in any building.

This design is ideal for urban sites with good views. The emotional effect is bright, airy, and well-ventilated.

Quick Tips

  • Place the living room at the corner for two windows.
  • Use the corner for a dining area or home office.
  • Avoid placing the bedroom on the noisier street.

2. The Through-Unit Apartment

The through-unit apartment has windows on two opposite sides of the building. Air flows through the unit from one side to the other. The through-unit provides cross-ventilation and natural light from both directions. It is the healthiest apartment type.

This design is ideal for warm climates and buildings with a narrow depth. The emotional effect is well-ventilated, bright, and healthy.

Quick Tips

  • Place the living room at one end, bedrooms at the other.
  • Keep the unit depth under 12 metres for cross-ventilation.
  • Use operable windows on both sides.

3. The Dual-Aspect Unit

The dual-aspect unit has windows on two adjacent sides (like a corner unit) or two opposite sides (like a through-unit). The dual-aspect unit provides more light and air than a single-aspect unit. It is the preferred apartment type in most markets.

This design is ideal for all climates. The emotional effect is bright, airy, and well-lit.

Quick Tips

  • Avoid single-aspect units (windows on one side only).
  • Dual-aspect units command higher rents and resale values.
  • Use the second aspect for the living room or master bedroom.

4. The Open-Plan Apartment

The open-plan apartment removes interior walls between the living room, dining room, and kitchen. The space is continuous and flexible. The open plan makes a small apartment feel larger. It is the standard for modern apartments.

This design is ideal for small units and young residents. The emotional effect is spacious, flexible, and social.

Quick Tips

  • Use changes in ceiling height or flooring to define zones.
  • Place the kitchen at one end for ventilation.
  • Use an island to separate the kitchen from the living area.

5. The Split-Bedroom Apartment

The split-bedroom apartment places the master bedroom on one side of the unit and the secondary bedrooms on the opposite side. The living room is in the middle. The split plan provides privacy for parents and children or for roommates.

This design is ideal for families and shared housing. The emotional effect is private, balanced, and family-friendly.

Quick Tips

  • Place the master bedroom at one end of the unit.
  • Place the secondary bedrooms at the opposite end.
  • The living room should be in the middle, between the bedroom zones.

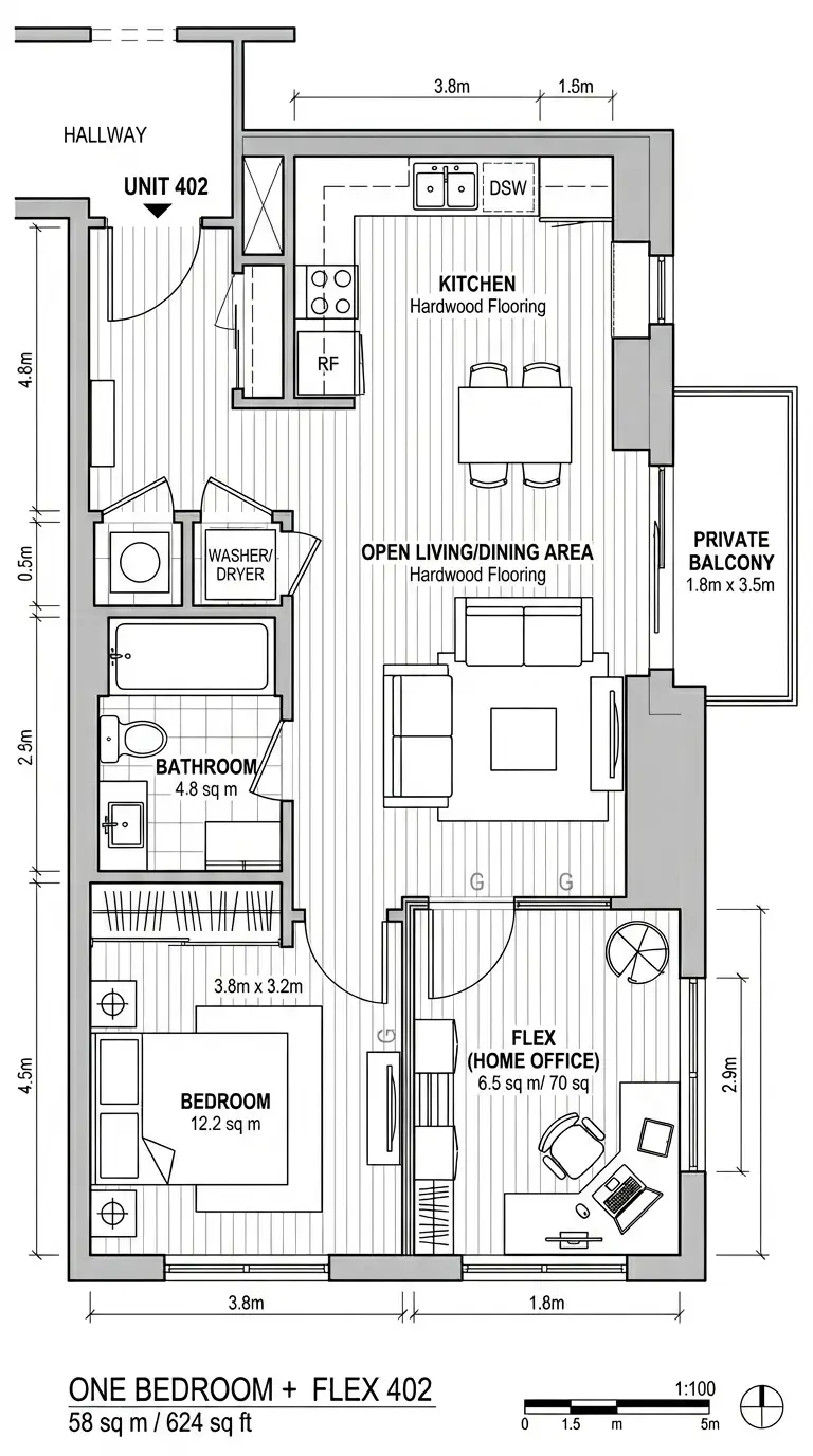
6. The Flex-Room Apartment

The flex-room apartment includes a small room that can be used as a home office, a guest room, a nursery, or a storage room. The flex room is usually 6-10 square metres. It has a window or a glass door for light. The flex room adds value without adding much cost.

This design is ideal for remote workers and young families. The emotional effect is flexible, valuable, and future-proof.

Quick Tips

  • The flex room should be at least 6 square metres.
  • It should have a window or a glass door to the living room.
  • It can be located off the living room or the entry.

7. The Terrace Apartment

The terrace apartment includes a private outdoor terrace. The terrace is accessible from the living room or the master bedroom. The terrace extends the living space outdoors. It provides light, air, and a place to sit outside.

This design is ideal for warm climates and top-floor units. The emotional effect is outdoor, private, and extended.

Quick Tips

  • The terrace should be at least 6 square metres to be usable.
  • It should be accessible from the living room.
  • Provide a tap for watering plants.

8. The Loft Apartment

The loft apartment is a converted industrial or commercial space. The ceilings are high (3.5 metres or more). The windows are large. The structure is exposed. The interior is open, with few walls. A mezzanine is often added for a bedroom.

This design is ideal for creative professionals and urbanites. The emotional effect is industrial, open, and creative.

Quick Tips

  • Preserve original windows, columns, beams, and brick walls.
  • Add a mezzanine for the bedroom to preserve the double-height living space.
  • Keep the ceiling high and exposed.

9. The Maisonette Apartment

The maisonette is an apartment with two floors. The lower floor has the living room, kitchen, and dining area. The upper floor has the bedrooms and bathrooms. The maisonette feels like a house. It is ideal for families.

This design is ideal for ground-floor or top-floor units. The emotional effect is house-like, private, and multi-level.

Quick Tips

  • Place living spaces on the lower floor, bedrooms on the upper floor.
  • The staircase should be compact but comfortable.
  • A powder room on the lower floor is essential.

10. The Accessible Apartment

The accessible apartment is designed for wheelchair users and people with mobility impairments. Doorways are 90cm wide. Hallways are 120cm wide. The bathroom has a roll-in shower. The kitchen has lower counters. The accessible apartment is not a special unit — it is a better unit for everyone.

This design is ideal for all buildings, required by law in many jurisdictions. The emotional effect is accessible, inclusive, and well-designed.

Quick Tips

  • Doorways must be at least 90cm wide.
  • Hallways must be at least 120cm wide.
  • The shower must be roll-in with no curb.

11. The Studio Apartment

The studio apartment is a single room with a separate bathroom. The living, sleeping, and cooking areas are in one space. The studio is the most efficient apartment type. It is ideal for one person.

This design is ideal for students, young professionals, and urban singles. The emotional effect is efficient, compact, and simple.

Quick Tips

  • Use a Murphy bed or a sofa bed to save space.
  • Use a kitchen island to separate the kitchen from the living area.
  • Keep the plan simple — no wasted space.

12. The Alcove Studio Apartment

The alcove studio apartment has a small alcove or niche that can be used as a sleeping area. The alcove is open to the main room but provides a sense of separation. The alcove studio is more livable than a standard studio.

This design is ideal for singles who want a little separation. The emotional effect is separated, efficient, and clever.

Quick Tips

  • The alcove should be at least 2 metres deep.
  • The alcove should have a window or be open to the main room for light.
  • Use the alcove for the bed, the main room for living.

13. The Multi-Generational Apartment

The multi-generational apartment has two master suites, one for parents and one for grandparents or adult children. The two suites are at opposite ends of the unit for privacy. The living room and kitchen are in the middle. The multi-generational apartment allows extended families to live together.

This design is ideal for cultures where multi-generational living is common. The emotional effect is private, communal, and family-oriented.

Quick Tips

  • Two master suites at opposite ends of the unit.
  • Each suite should have its own bathroom.
  • The living room and kitchen should be in the middle.

14. The Compact One-Bedroom Apartment

The compact one-bedroom apartment is 35-50 square metres. It has a separate bedroom, a living room, a kitchen, and a bathroom. The compact one-bedroom is the most common apartment type in dense cities. It is efficient but livable.

This design is ideal for singles and couples. The emotional effect is efficient, livable, and urban.

Quick Tips

  • Keep the bedroom small (9-12 sq m) but with a window.
  • Combine the living and dining areas.
  • Use a galley kitchen along one wall.

Final Thoughts

An apartment is not just a unit in a building. It is a home. A corner unit is bright and airy. A through-unit is well-ventilated and healthy. An open plan is spacious and social. A split-bedroom plan is private and family-friendly. A flex room is valuable and future-proof. A terrace extends living outdoors. A loft is industrial and creative. A maisonette feels like a house.

These 14 apartment ideas are not mutually exclusive. A corner unit can be an open plan. A through-unit can have a terrace. A maisonette can be a split-bedroom plan. The best apartments are not the largest — they are the most thoughtful. They give each resident light, air, privacy, and a place to call home. They are not just units — they are homes in the sky.

Related Posts