The architectural plan is the most fundamental drawing in the architect’s toolbox. It is a horizontal cut through a building at approximately 1.2 metres above floor level. The plan shows wall thicknesses, room layouts, door swings, window positions, stair locations, and circulation paths. A great plan is not just efficient — it is generous, surprising, and humane.
These 12 architecture plan ideas span organisational strategies, spatial arrangements, and circulation logics. Each idea includes defining characteristics, design principles, and practical applications.
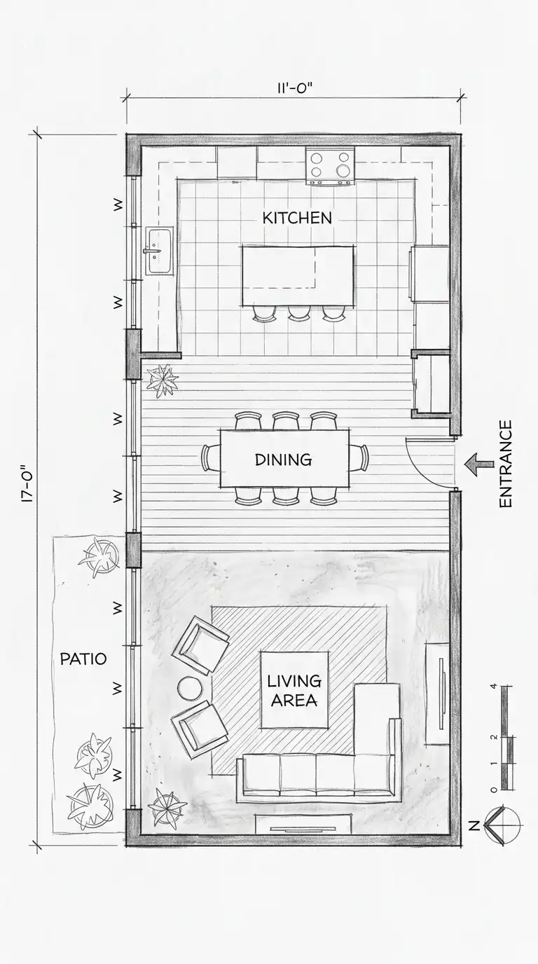
1. The Open Plan
The open plan removes interior walls, creating a single continuous space. Living, dining, and kitchen flow into each other. The space is defined by furniture, lighting, and changes in ceiling height, not by walls.
This plan is ideal for apartments, lofts, and modern houses. The emotional effect is spacious, flexible, and social.
Quick Tips
- Use changes in ceiling height or flooring to define zones.
- Place the kitchen at one end for service access and ventilation.
- Avoid interior walls wherever possible.

2. The Central Courtyard Plan
The central courtyard plan wraps rooms around an open centre. The exterior walls are solid and private. The interior opens entirely to the courtyard. All major rooms face the courtyard.
This plan is ideal for houses on tight urban sites or for hot climates. The emotional effect is calm, private, and centred.
Quick Tips
- The courtyard should be at least 5×5 metres to feel usable.
- All major living spaces should open onto the courtyard.
- The exterior walls should have few or no windows.

3. The L-Shaped Plan
The L-shaped plan has two wings meeting at a corner. The inside corner becomes a sheltered outdoor room. The exterior corners reach into the site. One wing contains public functions (living, kitchen, dining). The other wing contains private functions (bedrooms, bathrooms).
This plan is simple, flexible, and universally applicable. The emotional effect is balanced, clear, and quietly clever.
Quick Tips
- Each wing should be at least 6 metres long to create a meaningful outdoor room.
- The sheltered corner should face south for maximum outdoor use.
- Place the kitchen at the inside corner for easy access to both wings.

4. The U-Shaped Plan
The U-shaped plan has three wings forming a U around a central courtyard. The courtyard is enclosed on three sides, open on the fourth. This configuration provides even more privacy and shelter than the L-shape.
This plan is ideal for larger houses and sites where privacy is paramount. The emotional effect is sheltered, private, and generous.
Quick Tips
- Each wing should be at least 5 metres long to create a meaningful courtyard.
- The open side of the U must face south for solar access.
- Place the main living spaces on the courtyard side of each wing.

5. The Pinwheel Plan
The pinwheel plan has wings radiating from a central core like the blades of a pinwheel. Each wing is rotated slightly from the next. The central core contains vertical circulation and shared amenities. The gaps between wings become courtyards or gardens.
This plan breaks down a large building into smaller, more human-scaled pieces. The emotional effect is dynamic, varied, and non-repetitive.
Quick Tips
- Each wing should be rotated 30-45 degrees from the next.
- The central core should contain stairs, elevators, and shared spaces.
- The gaps between wings must be usable as outdoor space.

6. The Radial Plan
The radial plan has wings radiating from a central point like spokes from a wheel. The centre is a domed hall or courtyard. The wings are identical or varied. The radial plan is dramatic and centralised.
This plan is ideal for museums, libraries, and public buildings. The emotional effect is centralised, dramatic, and hierarchical.
Quick Tips
- The centre must be a large hall, courtyard, or dome.
- Wings should radiate at equal angles (90 degrees for four wings, 60 degrees for six).
- The wings can be identical or varied by function.

7. The Split-Level Plan
The split-level plan has floors at half-storey increments. The entry is at the middle level. Living spaces are half a storey down. Bedrooms are half a storey up. The plan follows a sloping site or creates interior interest on a flat site.
This plan creates intimate, connected spaces. The emotional effect is efficient, site-responsive, and spatially interesting.
Quick Tips
- Each level change should be exactly half a storey — typically 4-6 steps.
- The entry should be at the middle level to minimise stairs.
- Use the space under the split-level stairs for storage or a powder room.

8. The Double-Loaded Corridor Plan
The double-loaded corridor plan has a central corridor running the length of the building, with rooms on both sides. Every room has a window on the exterior. The corridor provides access and separation.
This plan is the most efficient for housing, hotels, and offices. The emotional effect is rational, efficient, and familiar.
Quick Tips
- The corridor should be at least 1.5 metres wide for two people to pass.
- Rooms on opposite sides of the corridor should be offset to reduce noise transfer.
- Natural light must reach the corridor through windows at the ends.

9. The Single-Loaded Corridor Plan
The single-loaded corridor plan has a corridor on one side of the rooms, with the other side open to the exterior. All rooms have windows, and the corridor also has windows. The plan is less efficient than double-loaded but provides better light and ventilation.
This plan is ideal for schools, dormitories, and buildings in warm climates. The emotional effect is open, well-lit, and well-ventilated.
Quick Tips
- The corridor should face south for passive solar gain (northern hemisphere).
- The corridor should be at least 1.8 metres wide to feel generous.
- Operable windows on both sides create cross-ventilation.

10. The Atrium Plan
The atrium plan has a large central space open to the sky, surrounded by smaller rooms on multiple levels. The atrium is the heart of the building — a vertical courtyard. Light enters from above and filters down to all levels.
This plan is ideal for libraries, museums, offices, and hotels. The emotional effect is vertical, luminous, and communal.
Quick Tips
- The atrium should be at least 6 metres wide to feel generous.
- Balconies or bridges should surround the atrium on each level.
- The roof over the atrium should be glass, with shading for summer.

11. The Courtyard Cluster Plan
The courtyard cluster plan places multiple small courtyard houses around a shared communal courtyard. Each house has its own private courtyard. All houses share a larger communal garden. This plan combines privacy with community.
This plan is ideal for co-housing, retirement communities, and clustered developments. The emotional effect is communal, private, and village-like.
Quick Tips
- Each house should have its own private courtyard for individual outdoor space.
- The communal courtyard should be large enough for group activities.
- Houses should be arranged to give each one a view of the communal space.

12. The Free Plan
The free plan, developed by Le Corbusier, has interior walls arranged independently of the structure. The structure is a grid of columns. The interior walls can be placed anywhere, or moved later. The plan is flexible and adaptable.
This plan is ideal for offices, galleries, and any building that may need to change over time. The emotional effect is flexible, adaptable, and modern.
Quick Tips
- The structure must be a regular grid of columns.
- Interior walls must be non-structural — they can be moved.
- The facade must be independent of the structure (curtain wall).

Final Thoughts
The architectural plan is the most fundamental drawing in the architect’s toolbox. It is not just a diagram of walls and doors — it is a diagram of how people live, work, and move through space. A great plan is efficient but not cramped, generous but not wasteful, surprising but not confusing.
These 12 plan ideas are not mutually exclusive. A free plan can have a central courtyard. An L-shaped plan can use a split level. A radial plan can have an atrium at its centre. The best plans draw from multiple typologies, adapting and combining to fit the specific site, program, and client. The plan is not the building — but without a good plan, there can be no good building.