12 Section Architecture Ideas

The architectural section is a vertical cut through a building. It reveals what the plan conceals: floor-to-ceiling heights, the relationship between levels, the thickness of walls and slabs, the path of light, and the experience of moving through space. While the plan is the drawing of the architect, the section is the drawing of the inhabitant.

These 12 section architecture ideas span drawing techniques, analytical approaches, and design strategies. Each idea includes defining characteristics, applications, and principles.

1. The Simple Cut Section

The simple cut section is the most basic section type. The building is cut by a single vertical plane. The cut surfaces are solid black or hatched. The spaces beyond the cut are drawn in thinner lines. The section shows structure, floor levels, and room heights.

This section type is for construction documentation and basic spatial understanding. The emotional effect is clear, technical, and legible.

Quick Tips

  • Cut surfaces should be solid black or hatched consistently.
  • Use thicker lines for cut elements, thinner lines for elements beyond.
  • Include a human figure for scale.

2. The Figured Section

The figured section populates the building with human figures. The figures are not decorative — they show how the space is used. A figure reading in the living room. A figure cooking in the kitchen. A figure sleeping in the bedroom.

This section type answers the question: how do people inhabit this space? The emotional effect is human, scaled, and programmatic.

Quick Tips

  • Figures should be at the correct scale for the section.
  • Show figures in typical activities for each space.
  • Use silhouettes for simplicity, detailed figures for character.

3. The Light Section

The light section studies how natural light enters the building. The sun angle is drawn, showing the path of light through windows and skylights. Shadows are drawn or hatched. The section shows which spaces receive direct sun at which times of day and year.

This section type is for environmental analysis and passive solar design. The emotional effect is luminous, analytical, and climatic.

Quick Tips

  • Draw the sun angle for the site latitude and time of year.
  • Hatch shadow areas in solid grey or cross-hatch.
  • Use a dashed line for the path of light through glazing.

4. The Structural Section

The structural section focuses on the building’s structure. Columns, beams, slabs, foundations, and connections are drawn in detail. Dimensions show sizes and spans. Material hatches distinguish concrete, steel, timber, and masonry.

This section type is for structural coordination and construction documentation. The emotional effect is technical, honest, and tectonic.

Quick Tips

  • Use standard material hatches: concrete (dots), steel (crosses), timber (parallel lines).
  • Show connections in detail — column to beam, beam to slab.
  • Dimension structural member sizes and spans.

5. The Material Section

The material section shows the assembly of building materials at a large scale (1:10, 1:5, or 1:2). The section cuts through a wall, roof, or floor. Each material layer is labelled: exterior cladding, air gap, insulation, vapour barrier, structure, interior finish.

This section type is for detailing and construction. The emotional effect is precise, layered, and materially intelligent.

Quick Tips

  • Draw at a large scale — 1:10, 1:5, or 1:2.
  • Label every material layer with leader lines.
  • Include dimensions for each layer thickness.

6. The Site Section

The site section cuts through the building and the surrounding landscape. The section shows the relationship between the building and the site: the building’s foundation, the grade, adjacent buildings, trees, and topography.

This section type answers the question: how does the building sit on the land? The emotional effect is contextual, topographic, and grounded.

Quick Tips

  • Show the existing grade and proposed grade.
  • Include adjacent buildings and significant trees.
  • Extend the section far enough to show site context.

7. The Perspective Section

The perspective section combines the accuracy of a section with the depth of a perspective. The cut is drawn in section, but the spaces beyond are drawn in perspective. The viewer sees both the vertical cut and the depth of the interior.

This section type is ideal for client presentations and competition drawings. The emotional effect is dramatic, spatial, and immersive.

Quick Tips

  • Draw the cut plane in accurate section (elevation).
  • Draw the spaces beyond using one-point or two-point perspective.
  • The cut should be through the most spatially interesting part of the building.

8. The Paraline Section

The paraline section is an axonometric or isometric drawing that has been cut. The building is drawn in three dimensions, but one quarter is removed to reveal the interior. The cut surfaces are hatched or solid.

This section type combines the spatial richness of a perspective with the measurability of an axonometric. The emotional effect is three-dimensional, measurable, and dramatic.

Quick Tips

  • Use a consistent isometric or axonometric angle.
  • Remove one quarter of the building to reveal the interior.
  • Hatch or solid fill the cut surfaces.

9. The Exploded Section

The exploded section pulls the building apart vertically. Floors, walls, and roof float apart from each other. The space between the layers shows how the building is assembled. The section is both analytical and dramatic.

This section type is ideal for explaining construction logic and assembly sequence. The emotional effect is technical, dramatic, and educational.

Quick Tips

  • Space the layers evenly — 1-2cm between layers is typical.
  • Use leader lines to connect components to their positions.
  • Keep the explosion direction consistent — vertical is most common.

10. The Circulation Section

The circulation section focuses on movement through the building. Stairs, ramps, escalators, and elevators are emphasised. Arrows show the path of movement. The section answers: how do people move from level to level?

This section type is for circulation analysis and accessibility studies. The emotional effect is dynamic, directional, and sequential.

Quick Tips

  • Draw stairs and ramps in detail — treads, risers, handrails.
  • Use arrows to show the direction of movement.
  • Colour or highlight the circulation path.

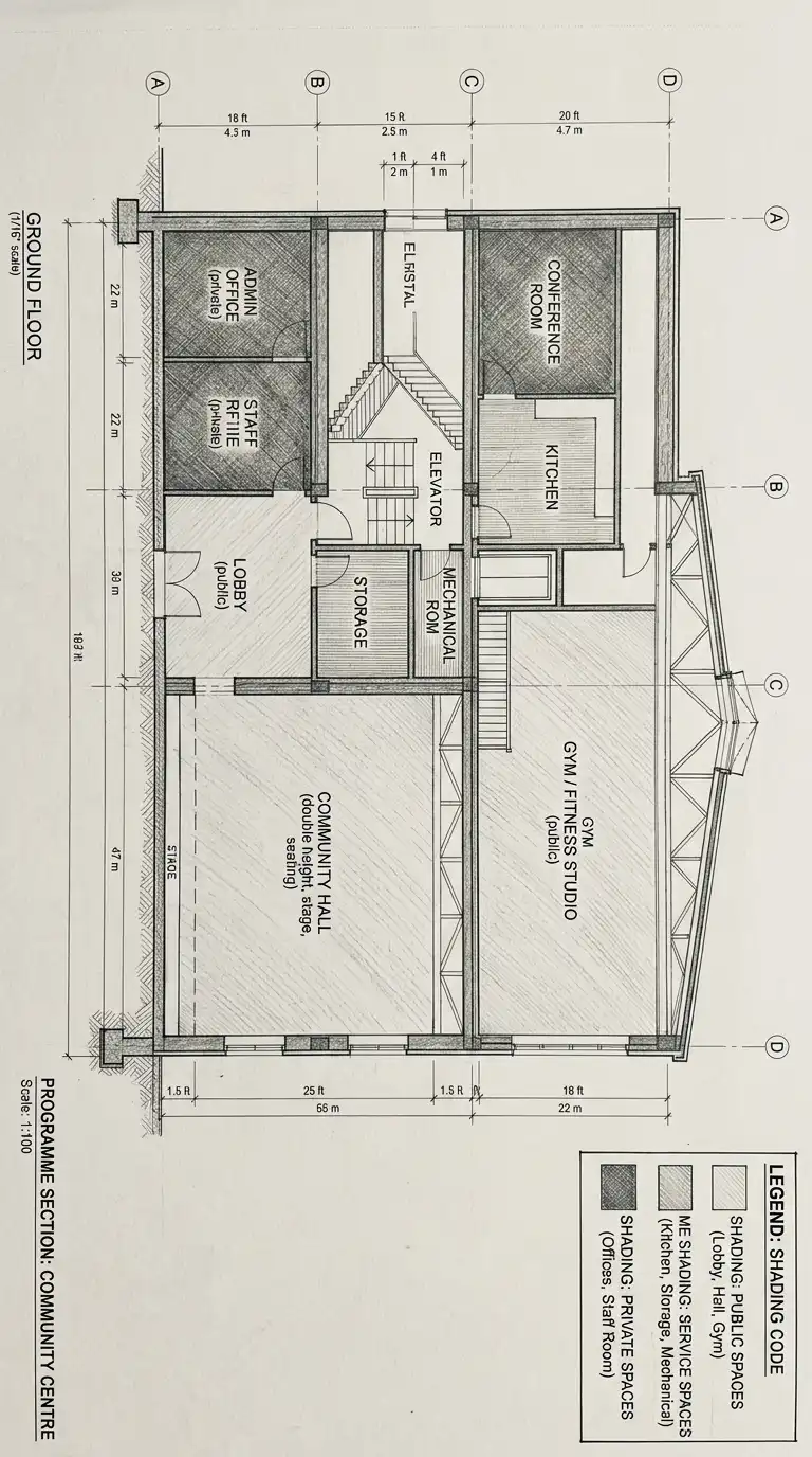
11. The Programme Section

The programme section uses shading, texture, or notation to show how spaces are used. Different shading represents different programmes: light for public, dark for private, medium for service. The section answers: what happens in each space?

This section type is for programme analysis and client presentations. The emotional effect is legible, and programmatically clear.

Quick Tips

  • Use a consistent shading code across all drawings.
  • Include a legend explaining the shading code.
  • Shade the spaces, not just label them.

12. The Spatial Sequence Section

The spatial sequence section shows a series of spaces in order. The section is cut through a path — entrance, corridor, room, corridor, room. The section shows how space changes as you move through the building: compression and release, light and dark, high and low.

This section type is for narrative and experiential design. The emotional effect is sequential, narrative, and experiential.

Quick Tips

  • Draw the section along a specific path through the building.
  • Annotate the sequence: 1. Entrance, 2. Corridor, 3. Gallery, etc.
  • Use figures to show the experience at each point.

Final Thoughts

The section is the most honest architectural drawing. The plan can hide. The elevation can lie. The perspective can distort. But the section reveals. It shows what is really there: the thickness of walls, the height of ceilings, the path of light, the relationship between inside and outside, between building and ground.

These 12 section types are not mutually exclusive. A figured section can be a light section. A material section can be a structural section. A perspective section can be a spatial sequence section. The best sections combine multiple intentions in a single drawing. They are not just technical documents — they are works of analysis and art.

Related Posts