A restaurant plan is not a cafe plan. Unlike a cafe, where customers order at a counter and seat themselves, a restaurant has table service, a waiting area, a host stand, and a dedicated service corridor for staff. The challenge is balancing the front-of-house (dining area, bar, waiting) with the back-of-house (kitchen, prep, dishwashing, storage, office). The best restaurant plans hide the back-of-house from customers while keeping it efficiently connected to the front-of-house.
These 7 restaurant plan ideas span the linear dining room, the L-shaped dining room, the open kitchen, the private dining room, the bar-focused restaurant, the outdoor dining, and the multi-level restaurant. Each includes defining characteristics, dimensional guidelines, and a prompt for visualization.
1. The Linear Dining Room (Long, Narrow, Kitchen at One End)
A restaurant in a long, narrow space (5-8m wide, 15-25m deep). The kitchen is at the rear (far from the street). The dining room is in front of the kitchen. A service corridor (or aisle) runs the length of the dining room, connecting the kitchen to the dining area. The bar is often at the front (near the entrance) or along one wall. This is the most common restaurant plan for urban storefronts. The challenge is the long walk from the kitchen to tables at the front (food gets cold).
This plan is for narrow storefronts, urban locations, or any space where the building is deeper than it is wide. The emotional effect is linear, deep, and kitchen-at-rear.
Quick Specs
- Storefront width: 5-8m.
- Storefront depth: 15-25m.
- Kitchen size: 30-50% of the total area.
- Dining seats: 40-80 seats.
- Aisle width: 1.2-1.5m (service corridor).
- Bar: at the front (near entrance) or along one wall.

2. The L-Shaped Dining Room (Kitchen at the Inside Corner)
A restaurant in an L-shaped space, with the kitchen at the inside corner of the L. The dining room wraps around the kitchen in two wings. The bar is often at the front of one wing. The L-shape naturally separates the dining room into two zones: a quieter zone (the longer wing) and a more active zone (the wing near the bar). The kitchen is centrally located, minimizing travel distances to both wings. This plan works well for corner spaces or irregular floor plans.
This plan is for corner locations, L-shaped spaces, or any restaurant where the dining room should be divided into two zones. The emotional effect is L-shaped, centrally-kitchened, and zoned.
Quick Specs
- Leg lengths: 10-15m each.
- Leg widths: 6-10m each.
- Kitchen size: 30-50 m² (located at the inside corner).
- Dining seats: 60-120 seats.
- Bar: in one wing (near the entrance).

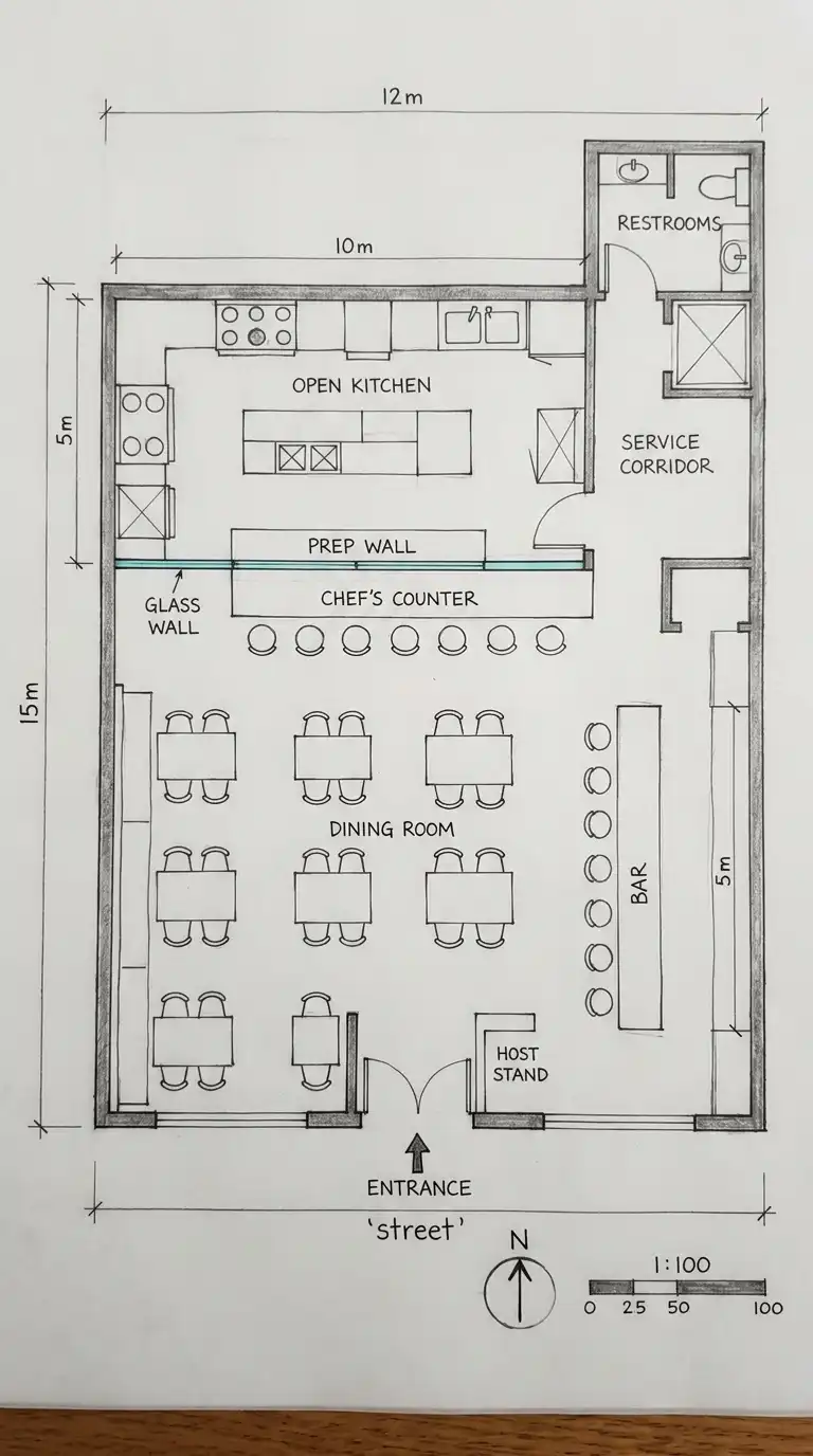
3. The Open Kitchen Restaurant (Kitchen Visible to Diners)
A restaurant where the kitchen is partially or fully visible to diners. The kitchen is at the rear or along one wall, but the front wall of the kitchen is glass or open (pass-through). Diners can see the chefs at work. The open kitchen creates theater and transparency. The challenge is keeping the kitchen clean and quiet (no loud banging, no visible mess). This plan is for high-end restaurants, chef-driven concepts, or any restaurant where the cooking is the show.
This plan is for chef-owned restaurants, fine dining, or any space where the kitchen should be a focal point. The emotional effect is open, transparent, and theatrical.
Quick Specs
- Kitchen visibility: glass wall or open pass-through.
- Kitchen location: rear or along a wall (visible from most tables).
- Chef’s counter: bar seating facing the kitchen (optional).
- Dining seats: 40-80 seats.
- Kitchen size: 30-50% of total area (larger than closed kitchens).

4. The Private Dining Room Restaurant (Main Room + Private Rooms)
A restaurant with one or more private dining rooms (PDRs) in addition to the main dining room. Private rooms are separated from the main room by walls, doors, or curtains. They are used for business dinners, parties, or special events. The private rooms are often near the kitchen (for easier service) but acoustically isolated from the main room. This plan is for fine dining restaurants, event spaces, or any restaurant that hosts private parties.
This plan is for upscale restaurants, hotels, or any space where private events are a significant revenue stream. The emotional effect is zoned, private, and exclusive.
Quick Specs
- Main dining room: 40-80 seats.
- Private dining rooms: 1-3 rooms, 10-30 seats each.
- Private room location: near the kitchen (service) but acoustically isolated.
- Bar: in the main dining room (near entrance).
- Restrooms: accessible from both main and private rooms.

5. The Bar-Focused Restaurant (Bar as Centerpiece)
A restaurant where the bar is the centerpiece, not an afterthought. The bar is large (10-20m long), often in the center of the room. Dining tables surround the bar. The kitchen is at the rear. The bar serves both drinks and food (bar menu). This plan is for gastropubs, cocktail bars with food, or any restaurant where the bar is the main attraction. The challenge is noise (bars are loud) and service (bartenders need access to the kitchen).
This plan is for high-volume bars, gastropubs, or any restaurant where drinks drive the business. The emotional effect is bar-centric, lively, and social.
Quick Specs
- Bar length: 10-20m (large).
- Bar location: center of the room (island bar) or along a wall.
- Bar seating: 20-40 stools.
- Dining seats: 40-80 seats (surrounding the bar).
- Kitchen: at the rear (connected to the bar via service corridor).

6. The Outdoor Dining Restaurant (Patio, Rooftop, or Garden)
A restaurant with significant outdoor seating (patio, rooftop, or garden). The outdoor area is accessible from the indoor dining room (through doors or pass-through windows). The outdoor area may have a separate bar or service station. The plan must consider weather protection (heaters, umbrellas, awnings) and accessibility (no steps). This plan is for warm climates, seasonal restaurants, or any space with a view (waterfront, garden, city skyline).
This plan is for warm-weather locations, waterfront sites, or any restaurant where outdoor dining is a draw. The emotional effect is outdoor, al fresco, and seasonal.
Quick Specs
- Indoor dining: 40-80 seats.
- Outdoor dining: 20-60 seats (patio, rooftop, or garden).
- Outdoor area: accessible from indoor (door or pass-through).
- Service: outdoor service station (small) or indoor bar.
- Weather protection: umbrellas, heaters, awnings (shown).

7. The Multi-Level Restaurant (Two Floors, Bar Down, Dining Up)
A restaurant with two or more floors. The bar and lounge are often on the ground floor (street level, for walk-ins and high turnover). The main dining room is on the upper floor (quieter, better views). The kitchen is typically on the ground floor (for delivery and service), with a food lift (dumbwaiter) or small prep kitchen upstairs. The challenge is service (food must go up) and accessibility (elevator required for ADA compliance).
This plan is for urban locations with vertical space (two-story storefronts), rooftop restaurants, or any restaurant with a view from the upper floor. The emotional effect is vertical, split-level, and view-oriented.
Quick Specs
- Ground floor: bar, lounge, host stand, kitchen (50-100 m²).
- Upper floor: dining room (60-120 seats), restrooms, service station.
- Connection: stairs (1.2m wide) + elevator (for ADA).
- Food lift: dumbwaiter from kitchen to upper floor.
- View: upper floor should have windows (street or skyline).

Comparison Summary
| Restaurant Type | Primary Feature | Best For | Kitchen Location | Bar | Seats |
|---|---|---|---|---|---|
| Linear Dining Room | Long, narrow, kitchen at rear | Narrow storefronts, urban | Rear | Front or along wall | 40-80 |
| L-Shaped Dining Room | Kitchen at inside corner | Corner spaces, zoning | Inside corner | One wing | 60-120 |
| Open Kitchen | Kitchen visible to diners | Chef-driven, fine dining | Rear or along wall | Front or side | 40-80 |
| Private Dining Room | Main room + private rooms | Upscale, events | Rear (near PDRs) | Main room | 60-120 |
| Bar-Focused | Bar as centerpiece | Gastropubs, high-volume | Rear | Center (island) | 60-120 |
| Outdoor Dining | Patio, rooftop, or garden | Warm climates, waterfront | Indoor | Indoor or outdoor | 60-140 |
| Multi-Level | Two floors, bar down, dining up | Urban, views | Ground floor | Ground floor | 60-120 |
Conclusion
The restaurant floor plan is the most complex commercial interior. Unlike a cafe, where customers serve themselves, a restaurant has table service—which means staff must move efficiently between the kitchen and the tables. The plan must balance front-of-house (dining, bar, waiting) with back-of-house (kitchen, prep, dishwashing, storage, office, staff restrooms). The best restaurant plans hide the back-of-house from customers while keeping it seamlessly connected to the front-of-house.
The seven restaurant plans presented here offer different strategies for different locations and different concepts:
The Linear Dining Room says: put the kitchen at the rear, the bar at the front, and the dining room in between. This is for narrow storefronts where space is limited. The challenge is the long service corridor (food gets cold).
The L-Shaped Dining Room says: put the kitchen at the inside corner so it can serve two wings equally. This is for corner spaces or irregular floor plans. The L-shape naturally divides the dining room into two zones (quiet and lively).
The Open Kitchen Restaurant says: make the kitchen the show. Diners can see the chefs at work. This is for chef-driven concepts where the cooking is theatrical. The challenge is keeping the kitchen clean and quiet.
The Private Dining Room Restaurant says: offer exclusive spaces for events. Private rooms generate higher revenue per square foot but require separate staffing and service.
The Bar-Focused Restaurant says: make the bar the centerpiece. The bar is large, central, and surrounded by tables. This is for gastropubs and cocktail bars where drinks drive the business.
The Outdoor Dining Restaurant says: use the patio, rooftop, or garden as a dining room. Outdoor seating is highly desirable but seasonal. The plan must connect indoor and outdoor seamlessly.
The Multi-Level Restaurant says: put the bar on the ground floor (for walk-ins) and the dining room upstairs (for reservations and views). This is for urban locations with vertical space.
When designing a restaurant floor plan, ask: Where is the kitchen? The kitchen should be at the rear (or inside corner) so the dining room is between the kitchen and the street. The kitchen should not be visible from the entrance (except in open kitchen concepts).
Ask: Where is the service corridor? Staff need a clear path from the kitchen to all tables. The service corridor should not cross the customer path. In a linear dining room, the service corridor is down the center. In an L-shaped dining room, the service corridor follows the L.
Ask: Where is the bar? The bar should be near the entrance (for walk-ins) but not blocking the host stand. Bar stools should not face the kitchen (unless it’s an open kitchen). The bar should have its own service access to the kitchen.
Ask: Where do customers wait? If there is a wait for tables (which there will be at peak hours), customers need a waiting area near the host stand. The waiting area should not block the entrance or the service corridor.
Ask: Where are the restrooms? Restrooms should be at the rear (near the kitchen) so customers walk through the dining room (seeing the full restaurant) but not through the service corridor. Restrooms must be accessible to wheelchair users (ADA compliance).
Ask: Where is the dishwashing area? The dishwashing area should be between the dining room and the kitchen (dirty dishes come in, clean dishes go out). It should not be visible to diners.
Ask: What is the table mix? 2-person tables (for couples), 4-person tables (for families), and 6-8 person tables (for groups). Booths along the walls maximize seating. Tables should not be too close (minimum 0.6m between tables for service).
The best restaurant plan is not the one with the most seats or the largest bar. It is the one where the server can carry three plates from the kitchen to table 12 without bumping into a customer, where the bartender can see the door, where the host can seat a party of six without moving three other tables, where the dishwasher is never seen but always heard (quietly), and where every seat has a view of something—the bar, the kitchen, the window, or the people. It is a plan for hospitality, not just for eating.