5 Cafe Floor Plan Ideas

A cafe floor plan is not a restaurant floor plan. Unlike a restaurant, where the focus is on seated dining with table service, a cafe focuses on quick service, counter ordering, and a mix of seating types (tables, lounge chairs, bar seating). The challenge is balancing the service zone (counter, espresso machine, pastry display, POS) with the customer zone (seating, circulation, waiting area). The best cafe plans make the customer feel welcome but move them efficiently from order to pickup to seating.

These 5 cafe floor plan ideas span the linear cafe, the corner cafe, the L-shaped cafe, the double-counter cafe, and the lounge cafe. Each includes defining characteristics, dimensional guidelines, and a prompt for visualization.

1. The Linear Cafe (Counter Along One Wall, Seating Opposite)

A narrow, rectangular cafe where the service counter runs along one long wall. Seating (tables, chairs, bar stools) is on the opposite wall and in the center. The entry is at one end; the pickup area is at the other end. Customers walk from entry to order to pickup to seating in a straight line. This is the most efficient cafe plan for narrow storefronts (3-5m wide). The challenge is avoiding congestion at the pickup area.

This plan is for narrow storefronts, coffee shops with high turnover, or any space where efficiency is paramount. The emotional effect is linear, efficient, and fast.

Quick Specs

  • Storefront width: 3-5m.
  • Storefront depth: 10-20m.
  • Counter length: 4-8m.
  • Aisle width: 1.2-1.5m (between counter and seating).
  • Seating capacity: 20-40 seats.

2. The Corner Cafe (Two Street Frontages, Counter in Corner)

A cafe located on a corner, with two street frontages. The entrance is at the corner (angled or chamfered). The service counter is in the corner (L-shaped or curved), visible from both streets. Seating is along both walls. The corner location provides maximum visibility and allows for outdoor seating on both sidewalks. The challenge is creating a focal point at the corner entrance.

This plan is for corner storefronts, high-visibility locations, or any cafe that wants to attract foot traffic from two streets. The emotional effect is corner-oriented, visible, and welcoming.

Quick Specs

  • Storefront dimensions: 10m x 15m (corner lot).
  • Counter: L-shaped or curved, 6-10m total length.
  • Entrance: at the corner (45° angled or chamfered).
  • Seating capacity: 30-60 seats (indoor).
  • Outdoor seating: on both sidewalks (seasonal).

3. The L-Shaped Cafe (Counter in One Leg, Seating in the Other)

A cafe in an L-shaped space. The service counter is in one leg of the L (the shorter leg, near the entrance). Seating is in the other leg (the longer leg, quieter). The L-shape naturally separates the service zone from the customer zone. Customers order in the counter leg, then move to the seating leg to find a table. This plan works well for corner spaces or irregular floor plans.

This plan is for L-shaped storefronts, corner spaces, or any cafe where the service area should be separated from the seating area. The emotional effect is L-shaped, zoned, and quiet-in-the-back.

Quick Specs

  • Leg lengths: 8-12m each.
  • Leg widths: 4-6m each.
  • Counter: in the shorter leg (4-6m long).
  • Seating capacity: 25-50 seats.
  • Restrooms: in the seating leg (near the back).

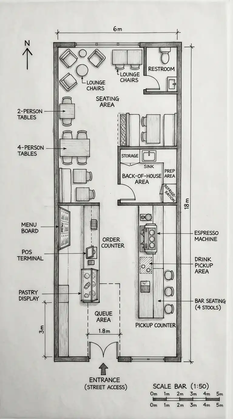
4. The Double-Counter Cafe (Order Counter + Pickup Counter)

A cafe with two separate counters: an order counter (with pastry display and POS) near the entrance, and a pickup counter (for drinks) further back. Customers order at the first counter, then walk to the second counter to pick up their drinks. This separates the ordering queue from the pickup crowd, reducing congestion. The second counter often has bar seating (customers can watch their drinks being made). This plan is for high-volume cafes (Starbucks-style).

This plan is for high-traffic locations, coffee shops with long queues, or any cafe where congestion is a problem. The emotional effect is double-counter, queued, and efficient.

Quick Specs

  • Storefront width: 5-8m.
  • Storefront depth: 12-20m.
  • Order counter: 3-5m long (near entrance).
  • Pickup counter: 3-5m long (4-6m from order counter).
  • Queue area: 1.5-2m wide (between entrance and order counter).
  • Seating capacity: 30-60 seats.

5. The Lounge Cafe (Seating-Focused, Small Counter)

A cafe where seating is the priority, not speed. The service counter is small (2-3m long), with a limited menu (coffee, pastries, light food). Seating is generous: lounge chairs, sofas, communal tables, and standard tables. The atmosphere is relaxed (customers stay for hours, working or chatting). The counter is often at the back or in a corner, not dominating the space. This plan is for neighborhood cafes, bookshop cafes, or any space where customers linger.

This plan is for low-volume, high-margin cafes, or any space where ambiance is more important than turnover. The emotional effect is lounge-like, relaxed, and seating-focused.

Quick Specs

  • Storefront size: 50-150 m² (500-1,600 sq ft).
  • Counter length: 2-4m (small).
  • Seating types: lounge chairs, sofas, communal tables, standard tables.
  • Seating capacity: 20-50 seats (low density).
  • Wi-Fi: indicated (customers stay for hours).

Comparison Summary

Cafe TypePrimary FeatureBest ForCounter LengthSeating DensityTurnover
Linear CafeCounter along one wall, seating oppositeNarrow storefronts, high turnover4-8mMediumHigh
Corner CafeTwo street frontages, counter in cornerCorner locations, visibility6-10m (L-shaped)MediumHigh
L-Shaped CafeCounter in one leg, seating in the otherL-shaped spaces, zoning4-6mMediumMedium
Double-Counter CafeOrder counter + pickup counterHigh-volume, long queues3-5m eachMediumVery high
Lounge CafeSeating-focused, small counterNeighborhood cafes, lingering2-4mLowLow

Conclusion

The cafe floor plan is a balance between speed and comfort. A cafe that is too efficient feels like a cafeteria; a cafe that is too relaxed loses money on slow turnover. The best cafe plans serve both the customer who wants a quick espresso to go and the customer who wants to sit for three hours with a laptop.

The five cafe plans presented here offer different strategies for different locations and different business models:

The Linear Cafe says: move customers in a straight line from entrance to order to pickup to seating. This is for narrow storefronts where space is limited. The plan is efficient but can feel like a conveyor belt if not designed with care.

The Corner Cafe says: use the corner to attract customers from two streets. The L-shaped or curved counter is visible from both directions. This is for high-visibility locations. The plan is welcoming but requires careful management of two street entrances.

The L-Shaped Cafe says: separate the service zone from the customer zone. The counter is in the short leg; seating is in the long leg. This is for L-shaped spaces or for cafes that want a quiet seating area away from the counter noise.

The Double-Counter Cafe says: reduce congestion by separating ordering from pickup. Customers order at the first counter, then walk to the second counter for their drinks. This is for high-volume locations where queues are long. The plan requires more staff but moves customers faster.

The Lounge Cafe says: seating is the priority. The counter is small and tucked away. Customers stay for hours, so the seating must be comfortable (lounge chairs, sofas). This is for neighborhood cafes where ambiance matters more than turnover.

When designing a cafe floor plan, ask: Where do customers queue? The queue should not block the entrance or the pickup area. In a linear cafe, the queue runs parallel to the counter. In a double-counter cafe, the queue is between the entrance and the order counter.

Ask: Where do customers pick up their drinks? The pickup area should be separate from the order area. In a linear cafe, pickup is at the end of the counter. In a double-counter cafe, pickup is at a separate counter. In a lounge cafe, pickup is at the same counter as order (low volume).

Ask: Where do customers sit? Seating should be visible from the counter (so staff can clear tables) but not so close that customers feel rushed. Lounge chairs and sofas encourage lingering; hard chairs and small tables encourage turnover.

Ask: Where is the espresso machine? The espresso machine should be visible to customers (theater) but not so loud that it disrupts conversation. In a linear cafe, the machine is at the pickup end. In a double-counter cafe, the machine is at the pickup counter.

Ask: Where do staff move? Staff need a clear path from the counter to the seating area (to clear tables), from the counter to the back-of-house (to restock), and from the counter to the restrooms (for breaks). These paths should not cross the customer queue.

Ask: Where is the restroom? Restrooms should be at the rear of the cafe (not near the entrance or counter). Customers should walk through the seating area to reach the restroom (so they see the full cafe).

Ask: Where is the outdoor seating? If the cafe has a sidewalk, patio, or rooftop, the outdoor seating should be visible from the street (to attract customers) and accessible from the interior (without going outside and re-entering).

The best cafe floor plan is not the one with the most seats or the fastest service. It is the one where the customer feels welcome but not crowded, where the barista can see the door, where the queue does not block the pickup, where the espresso machine is a showpiece, and where the restroom is clean and easy to find. It is a plan for community, not just for coffee.

Related Posts